+45 21 54 90 20 mellem kl. 9.00 - 15.00

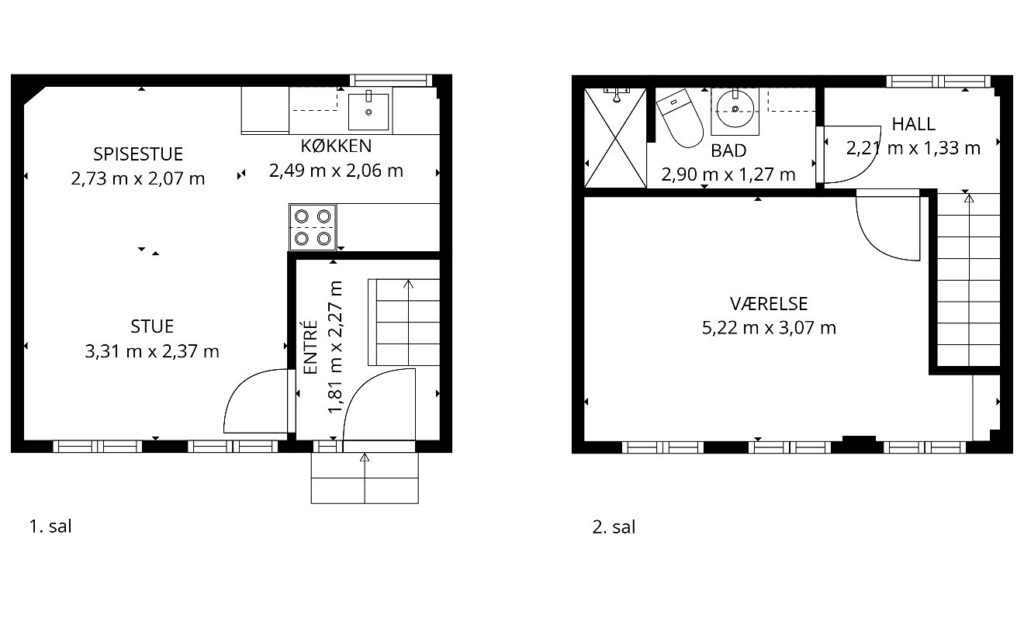
Klosteret 2b - Stuen (Byhus 2 plan)

6100 Haderslev

Se paa kort

Klosteret 2B, 6100 Haderslev

Lille hyggeligt byhus, som ligger centralt i hjertet af Haderslev by.

Huset er på to plan med stue/køkken i stueplan og soveværelse og badeværelse på 1. sal.